Stor 80 cm induktionskogeplade med Connex-teknologi for smart integration. Bridge-funktion og elegant sort glasdesign.
Zone
Antal zoner:
4
stk.
Betjening
Betjening (kogeplade):
Slidertouch control
Betjening
Effekttrin:
10
trin
Vare
Børnesikring:
Ja
Vare
Tilslutningseffekt:
7,2
kW
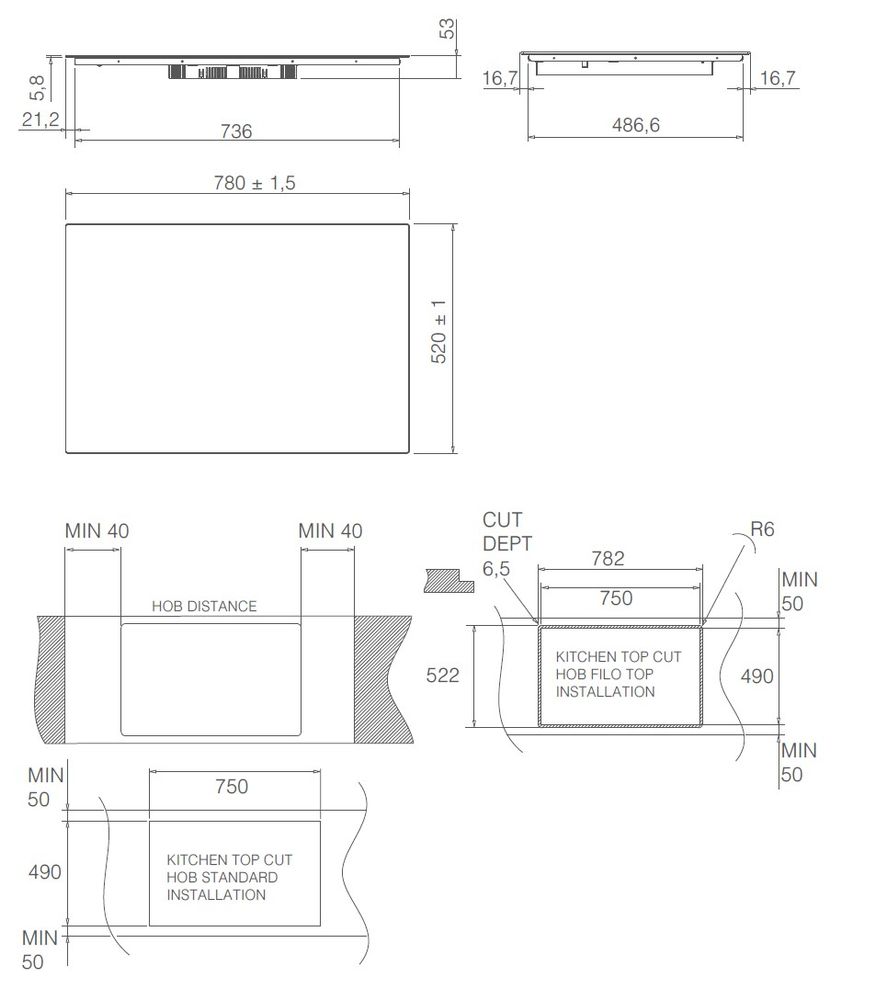
Brofunktion; i venstre side (21x38 cm)
I venstre side kan forreste zone og bagerste zone kobles sammen til én kogezone på 21x38 cm
STOP-AND-GO funktion
STOP-AND-GO funktionen gør det mere sikkert at lave mad. Når du får uventet besøg er alt hvad der skal til, en let berøring på STOP-AND-GO funktionn og alle de aktiverede kogezoner slukkes. Når du vender tilbage til køkkenet skal du blot røre samme knap igen og alle kogezoner tændes ved den tidligere valgte indstilling.
Sikkerhedsafbryder
En ekstra sikkerhedsforanstaltning sikrer at produktet - hvis den er tændt - automatisk slukker af sig selv efter et vist antal timer.
Restvarmeindikator
Varmeindikatoren viser hvilke kogezoner, der er varme. Så ved du ikke alene hvornår du skal være forsigtig, du kan også bruge den overskydende varme til at holde maden varm og på samme tid spare energi.
Børnesikring
Med børnesikringen slået til, er det ikke muligt at komme til at tænde for/åbne hvidevaren ved et uheld.
7 års garanti ved registrering af produktet
På dette produkt tilbydes 7 års garanti. Registrer dit produkt inden 90 dage og få den ekstra lange garanti